Affordable & Supportive Housing & Coach Houses

Designing Inclusive, Sustainable Communities in Ottawa

At JoT Architecture, we believe everyone deserves a safe, dignified, and beautiful place to live. Our Ottawa-based architectural firm specializes in innovative affordable housing, supportive living environments, and coach house designs that prioritize community, sustainability, and long-term value.

Modern restaurant with wooden tables, white cushioned chairs, and purple accent wall, decorated with small vases of flowers, and large windows with patterned curtains.

Our Work: Affordable and Supportive Housing


DUNBAR COURT

A new 3 storey, 31 unit affordable-rent apartment building designed within an existing community of townhomes in Nepean. Bachelor, 1 bedroom, 2 bedroom, and supportive housing units with accessibility on all levels provides much needed access to housing for individuals and families. Using Passive House and net-zero design principles, building features include high insulation values, airtight construction, wall mounted solar panels to collect energy and provide summer shading to south glazing, and high-efficiency all-electric heating and cooling equipment to reduce greenhouse gas (GHG) emissions. This project was completed in 2025 in collaboration with Nepean Housing Corporation and McDonald Brothers Construction, with grants and loans from the Federation of Canadian Municipalities, CMHC, the City of Ottawa and federal funding.

Modern multi-story apartment building with solar panels on the windows and contemporary exterior design, including wood and metal siding. Several cars are parked in front.
Open courtyard of a modern apartment complex with multiple windows and small balconies, landscaped with trees and colorful flowers, on a sunny day.
Clean hotel hallway with multiple elevator doors and a patterned tile floor.
Courtyard garden with colorful flowers and small tree, surrounded by beige multi-story residential building with balconies and windows, under a clear blue sky.

TOMPKINS

A 16 unit townhouse development in Orleans including affordable and market rent housing, accessible units, and an assisted living group home. Designed to include energy efficiency and environmental sustainability in housing units, site layout, and infrastructure planning through the use of a new loop road designed around a central common space. Maximizing the use of existing infrastructure and blending with the surrounding low density development creates a strengthened sense of community for new and existing residents.

This project was completed in 2010 in collaboration with Cumberland Housing Corporation.

Architectural site plan of a residential development with multiple buildings, trees, walkways, and parking areas.
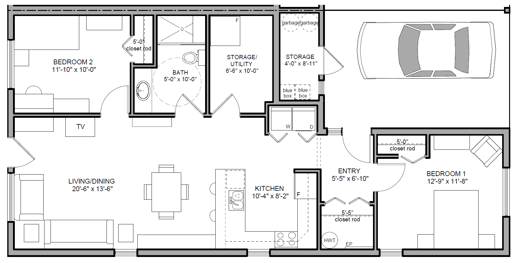
Floor plan of a house showing two bedrooms, a living/dining area, kitchen, bathroom, storage rooms, entryway, and garage, with various labels for measurements and features.
Multi-family residential buildings with beige siding and red brick, a small tree with reddish leaves in the front yard, green shrubbery, and a walkway.
Living room with large windows, a door with a window, a black sofa with pillows, a wooden coffee table with pumpkins and decorations, a TV on a stand, and framed black-and-white portrait on the wall.

COLONIAL

A two storey addition allowed 15 new affordable apartments to be added to an existing 24 unit seniors affordable apartment building in Sarsfield. The new wing includes accessible apartments, an assisted living suite, elevator and expanded social room with kitchen. The project included renovations to the existing building to provide accessibility throughout. The design integrated the new wing to blend with the existing low-rise design, while enhancing views and connections to the surrounding rural setting. Suites with abundant natural light,  large outdoor terraces and balconies, and ease of access to communal gardens and outdoor amenity spaces allows seniors to live independently while being part of a community of peers. This project was completed in 2019. In collaboration with Cumberland Housing Corporation.

Floor plan of a house with three bedrooms, one bathroom, a living area, and a kitchen.
Floor plan of a small apartment with a kitchen, living area, bedroom, bathroom, and balcony.
A two-story apartment building with balconies, surrounded by a grassy area with sidewalk paths, a small parking lot, and a sun setting in the distance.

CHARTWELL

Renovation projects for Chartwell’s retirement residences within eastern Ontario and western Quebec have included updating and reconfiguring suite layouts to accommodate changing needs of residents, modernizing and improving space planning of common areas such as dining spaces, lounges, lobbies, and corridors, and improving back of house functions with renovations to their commercial kitchens, serveries, mechanical systems and offices.

Modern hotel lobby with a reception desk, a large flat-screen TV, seating area, and large windows letting in natural light.
Modern interior living space with wooden flooring, a fireplace with white marble surround, a floral painting, and seating with side tables decorated with plants and ornaments. There is a large window and contemporary light fixtures hanging from the ceiling.
Interior of a modern dining area with multiple tables and chairs near large windows, decorated with small vases on each table, and a blue accent wall with mounted plant pots on the right side.
Empty hotel hallway with beige and gray walls, modern light fixtures, and a patterned carpet, leading to a window with green plants outside.

Indigenous Projects


INDIGENOUS CENTRES

A number of projects have been completed over the last two decades in Ottawa for First Nations and Inuit clients to support education, training, housing, and gathering. An addition to a shelter for Minwaashin Lodge which supports indigenous women and children, was constructed to house an updated commercial kitchen, gathering space, offices and storage. The addition was designed to blend into the existing residential building and neighbourhood in order to keep the identity of the building private to protect residents (no photos are included for this reason). Interior renovations for Nunavut Sivuniksavut Inuit Secondary School included selection of new interior finishes, colours and graphics. A feasibility study for the Tungasuvvingat Inuit Centre heritage building included investigation of the existing building conditions and building code requirements, preparation of design options, benefit analysis, and building permit application for building retrofits.

A large old brick house with a steeply pitched roof and small balcony, partially covered in snow, with leafless trees in front.
Living room with yellow walls, colorful armchairs, a window with floral curtains, and stained glass above the window.
A cozy dining area with a wooden table covered in a floral tablecloth, surrounded by wooden chairs. On the table are condiments and bottles. To the right, there's a window with a floral curtain, a vase of flowers, and a radiator beneath. A water dispenser is near the window. On the left wall, there's a large red tapestry with a black design, a small framed picture, and a sign that says, "Please try not to spill coffee or damage." A sideboard holds supplies and drink stations.

MADAWASKA

A prefabricated, modular approach was developed to meet a critical need for seniors’ housing in rural Eastern Ontario. Designs looked at different potential configurations to suit local needs for independent living apartments and care facilities. Features included accessible units, common social areas, and energy efficiency design.

Floor plan of a multi-unit residential building with four apartments surrounding a central open courtyard that includes a tennis or basketball court. Each apartment has bedrooms, bathrooms, kitchens, and living areas, with balconies facing the courtyard.
Line drawing of a building complex with trees on both sides and a pathway leading to the entrance.

Coach Houses


WILKINSON

This project in Almonte intensifies an existing large property with a brick house through lot severance and construction of a coach house at the rear of a corner lot. The clients’ goal is to set a precedent for intensification that respects the context of a historical small town. The coach house is designed in the style of traditional workers housing in the surrounding area with a traditional front porch, brick and wood detailing. A high open area with four large windows creates a feeling of spaciousness in a small home, leading via an open stair to two bedrooms in a loft space.

Architectural blueprint of a two-story house with a front porch, gabled roof, and multiple windows.
Floor plan of a house with a kitchen, dining area, living space, bathroom, and staircase.
Architectural site plan detail of residential property on Mitcheson Street, showing existing buildings, new constructions, patios, walkways, driveway, trees, and property boundaries.

SWEETLAND

An additional dwelling unit (ADU) built in Sandy Hill replaced an older garage building at the rear of the property. Located within the Heritage Conservation District, the addition was designed to enhance the heritage character of the existing building. A ground level courtyard and roof deck above the 1 storey addition provide outdoor space for leisure and gardening. Clerestory windows facing east allow morning light to pour into the space while maintaining ample storage space for kitchen cabinetry. Large windows on the opposite wall provide a connection to the courtyard. 

This project was completed in 2025. In collaboration with Pandore Innovations.

A hand-drawn architectural sketch of a two-story house with a sloped roof, a chimney, and labeled areas: a deck and a study, with window and door outlines.
Interior view of large window with multiple panes looking out onto a snow-covered backyard with a neighboring building and a wooden fence.
A group of people inside a kitchen under renovation, with large windows showing snow outside, and construction materials and tools around.

Let’s Design Spaces That Bring People Together

Whether you're developing a cultural center, a wellness retreat, or a seasonal entertainment venue, JoT Architecture has the expertise to deliver spaces that are meaningful, adaptable, and impactful.

Contact us today to start planning your next community-oriented space.

Contact Us

Affordable Housing Architecture That Enriches Lives

We design housing that people are proud to call home. Each project blends thoughtful design with energy efficiency and affordability to create supportive environments that meet diverse resident needs.

Our affordable housing designs feature:

  • Energy-efficient envelopes to reduce operational costs

  • Durable, low-maintenance materials for long-term affordability

  • Flexible unit layouts for individuals, families, and seniors

  • Ample natural light and cross ventilation

  • Shared community and green spaces to promote connection

  • Universal design for full accessibility

    Seamless integration with surrounding neighborhoods and transit

From townhome communities in Orléans to apartment buildings in Nepean and Sarsfield, our work balances affordability, livability, and design excellence.

Supportive Housing That Promotes Healing and Independence

We create supportive housing tailored to residents' unique needs, whether through trauma-informed design, assisted living features, or onsite service integration.

Our supportive housing expertise includes:

  • Privacy-balanced layouts with shared community spaces

  • Accessible units that exceed minimum code

  • Spaces for mental health support, assisted living, and social services

  • Calming, secure environments designed with dignity in mind

  • Outdoor areas that support wellness and recovery

Modular, Adaptive & Heritage-Sensitive Design

Whether designing for rural needs or urban heritage districts, our approach adapts to every context. We’ve created prefabricated modular housing for seniors, additions to heritage buildings, and discreet infill solutions like coach houses and ADUs.

These designs often include:


Trusted Guidance Through Funding & Approvals

JoT Architecture understands the complexities of funding and regulatory requirements in affordable housing projects.

We help clients:

  • Align with CMHC, municipal, and federal funding programs

  • Meet Passive House, Net-Zero, and GHG reduction goals

  • Navigate approvals and permits

  • Deliver reporting metrics and documentation

Each project reflects our commitment to thoughtful, community-focused architecture that fosters belonging and independence.


A Portfolio Rooted in Community Impact

Our work includes:

  • Family-friendly townhouses and apartment buildings

  • Seniors housing with aging-in-place features

  • Indigenous community spaces and transitional housing

  • Supportive and assisted living residences

  • Mixed-income developments and infill intensification

  • Coach houses and secondary units that fit heritage neighborhoods

Scroll to Top

Let’s Bring Your Affordable Housing Vision to Life

Whether you’re a nonprofit, developer, or government agency, we’re ready to collaborate. Let’s design affordable, resilient housing that meets today’s needs—and tomorrow’s possibilities.

Contact Us Today